Описание
Отзывы
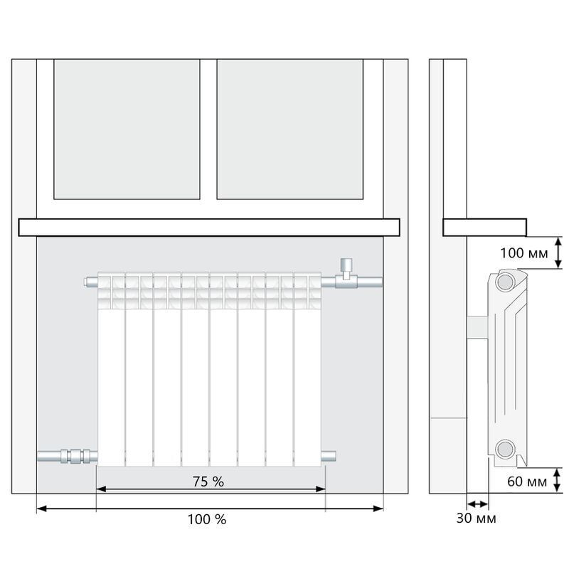
Описание
Предназначены для использования в централизованных системах водяного отопления многоэтажных домов;
Также подходит для использования административных, общественных и производственных зданий.
Преимущества:
Долговечность (радиатор имеет алюминиевый корпус и стальной сердечник – обладает повышенной прочностью и высокой антикоррозийной стойкостью; покрытие радиатора не выгорает и не выцветает при эксплуатации; гарантия – 10 лет; срок службы – не менее 10 лет).
Эффективность (высокая рабочая температура теплоносителя – до 110 °С; выдерживают сильные нагрузки от теплоносителя и высокое давление до 25 атмосфер; рассчитан на контакт с жесткой водой);
Безопасность (экологически чистое покрытие – не выделяет вредные вещества при нагревании; подходит для монтажа в жилых помещениях);
Удобство в использовании (несложный подвесной монтаж; простой уход – протирается обычной чистой ветошью).
Купить радиатор биметалл в Тюмени
Отзывы
Отзывов еще никто не оставлял

